1100 & 1126 SE DIVISION ST
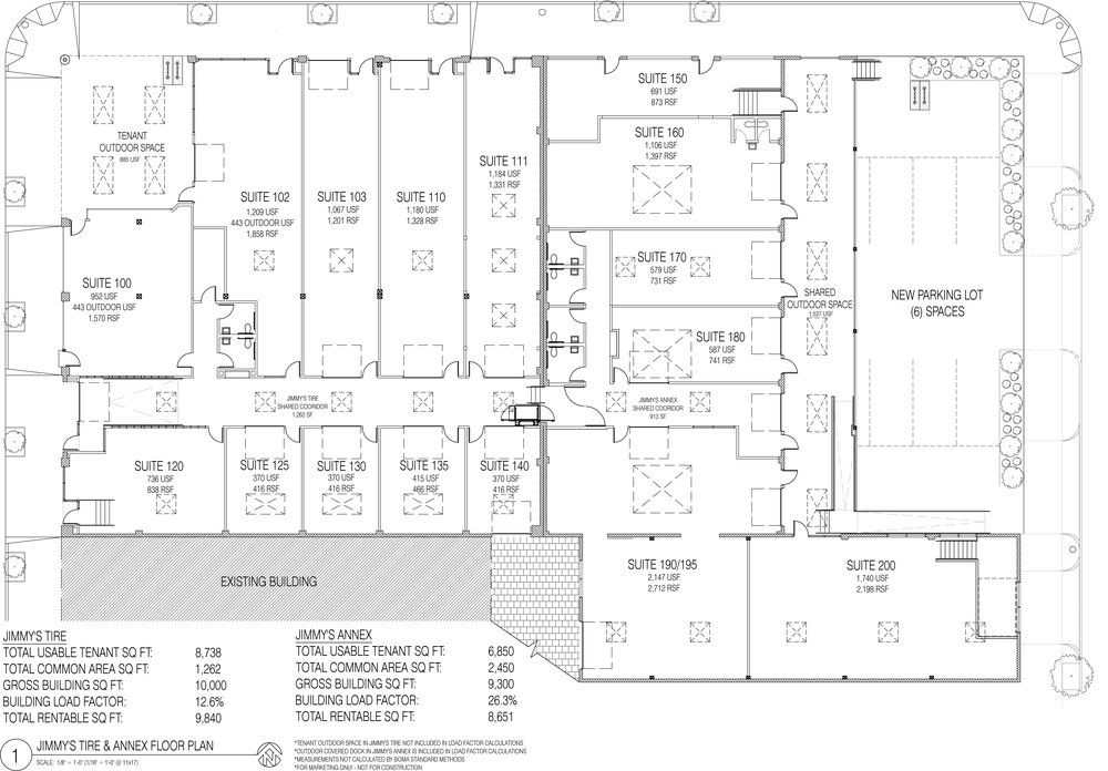
Jimmy's Tire & Annex
16 Suites from 416 SF - 4,910 SF
MIXED-USE BUILDING IN PORTLAND, OR
The Jimmy's Tire Building and Annex, named after its previous iteration as a tire service shop, is a beautiful example of Intrinsic's vision for repurposing yesterday's industrial buildings into mixed-use office and retail centers.
Located off SE 11th Ave and SE Division, across the street from the Ford Building, this bustling new neighborhood provides a great opportunity for small retailers. Pine State Biscuits, a tourist favorite brings walking traffic through this enclosed shopping arcade connecting 11th Ave to 12th Ave. All suites enjoy high ceilings, skylights, and glass roll-up doors.
Nearby retailers include Simply Vintage, Books with Pictures, AVIDD Boutique, Talon Gallery, Baker's Mark, TREW Gear, Virtuous Pie & Fingerbang Salon.
Vital Mixed-Use Hubs
Our buildings are vital, mixed-use hubs that thrive because their location and close proximity to other, minor-commercial properties creates a draw for local, repeat customers. By developing clusters of contiguous properties, we create a sense of community amongst our multi-tenant buildings. Developing and preserving historic buildings on tree lined sidewalks, establishing thriving communities in open public spaces and job creation are at the core of Intrinsic’s philosophy.












