1960 SE HAWTHORNE BLVD
The Campa Building
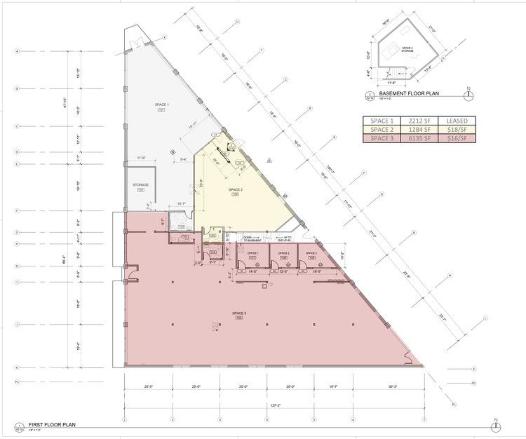
3 Suites from 1,170 SF to 5,785 SF
MIXED-USE BUILDING IN PORTLAND, OR
This Art Deco building, built in 1927, is under renovation to accentuate its best features, exposing rafters and letting in natural light through skylight additions. With 13,986 SF bordering Ladd’s Addition, this mixed-use property, in the vibrant and cohesive SE Hawthorne Blvd. retail corridor, offers prime ground-level office, retail, and restaurants to neighboring residents.
Vital Mixed-Use Hubs
Our buildings are vital, mixed-use hubs that thrive because their location and close proximity to other, minor-commercial properties creates a draw for local, repeat customers. By developing clusters of contiguous properties, we create a sense of community amongst our multi-tenant buildings. Developing and preserving historic buildings on tree lined sidewalks, establishing thriving communities in open public spaces and job creation are at the core of Intrinsic’s philosophy.












